Bedrooms 6 |
Bathrooms 2 full |
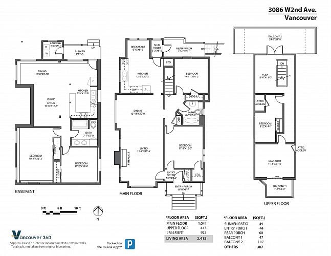
2413 sq.ft. |
MLS® # R3113617
Prime North of 4th Kitsilano opportunity with flexibility to renovate, hold, or redevelop. Situated on a 40-ft RT-8 zoned lot, this property offers excellent redevelopment potential, including duplex possibilities (buyers to verify with City of Vancouver). RT-8 zoning allows for additional density incentives when pursuing net-zero or Passive House construction. Previous development permit has expired, though plans for an approx. 3,300 sq.ft. net-zero duplex may offer future inspiration. Potential to retain & renovate existing character home. Current home features a 4-bed main/upper suite & 2-bed garden suite generating $7,625/month total income. Sunny south-facing yard, mountain views, quiet traffic-calmed street, 2 blocks to beach access. Steps to shops, cafés, transit, UBC & downtown.
Features: Washer/Dryer, Dishwasher, Refrigerator, Stove
Listing Provided ByStilhavn Real Estate Services
Copyright and Disclaimer
The data relating to real estate on this website comes in part from the MLS® Reciprocity program of either the Real Estate Board of Greater Vancouver (REBGV), the Fraser Valley Real Estate Board (FVREB) or the Chilliwack and District Real Estate Board (CADREB). Real estate listings held by participating real estate firms are marked with the MLS® logo and detailed information about the listing includes the name of the listing agent. This representation is based in whole or part on data generated by either the REBGV, the FVREB or the CADREB which assumes no responsibility for its accuracy. The materials contained on this page may not be reproduced without the express written consent of either the REBGV, the FVREB or the CADREB.